Get it on Google Play

TREATER

Download Images

Return to Search




TREATER

Fairview

Listing ID 12480
Company Canadian Natural Resources Limited
Status For Sale
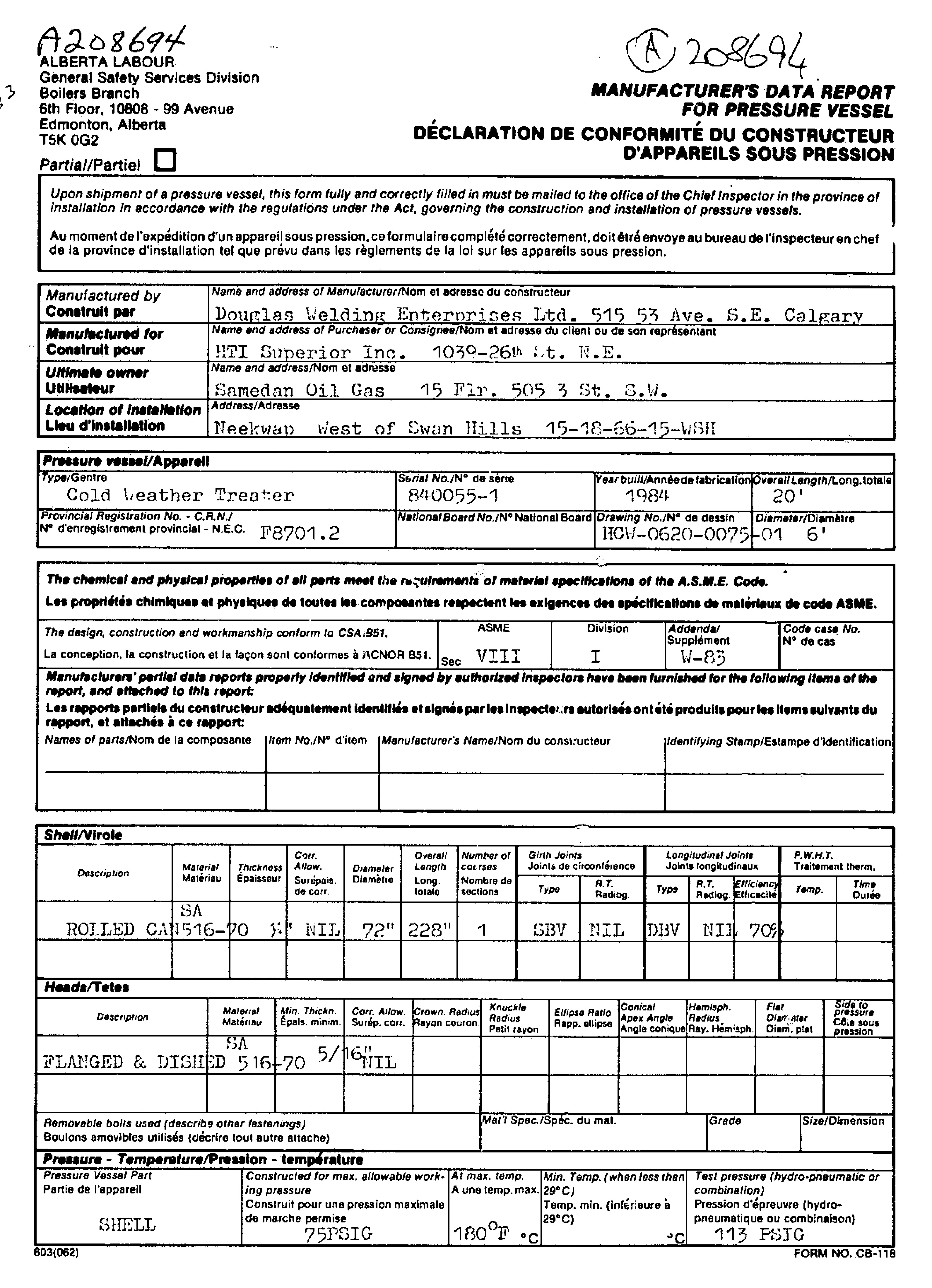
Year Built 1984
Condition B

Treater Information

Diameter 72"
Height/Length 10'
ANSI Rating N/A
Sour Service No
Duty (BTU/hr)
Packaged Yes
Orientation Horizontal
Treater Type
Manufacturer DOUGLAS WELDING

Pricing Information

Price

Serial Numbers

A# 208694
CRN#
Serial# 840055.1

Location

Operating Area Fairview

Description

DUNVEGAN 14-29

75 PSI

Contact Information

Cdnnaturalogo

Asset Recovery
Canadian Natural Resources Limited


2500, 855 - 2 Street S.W.
Calgary, Alberta
T2P 4J8

403-517-6700
assetrecovery@cnrl.com
2.4.10:4.2.11.3