Get it on Google Play

SEPARATOR PACKAGE

Download Images

SEPARATOR PACKAGE

Grande Prairie South

Listing ID 63639
Company Canadian Natural Resources Limited
Status For Sale
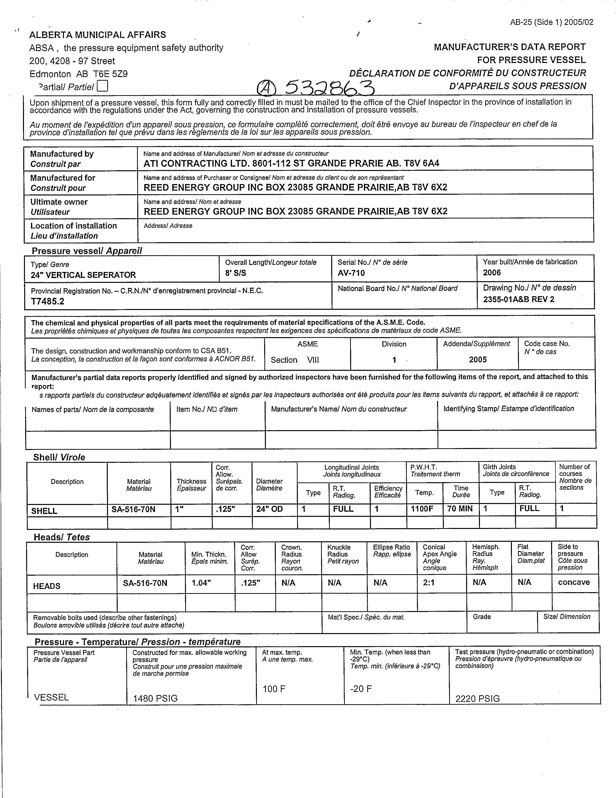
Year Built 2006
Condition B

Separator Information

Diameter 24"
Separator Length 8
Separator Type 3 Phase
MAWP (PSI) 1480
MAWP (kPa) 10204
Orientation Vertical
Skidded No
Sour Service No
Integrated Tank No
Manufacturer ATI CONTRACTING LTD.

Pricing Information

Price

Serial Numbers

A# A532863
CRN# T7485.2
Serial# AV-710

Location

Operating Area Grande Prairie South

Description

Separator package

Contact Information

Cdnnaturalogo

Asset Recovery
Canadian Natural Resources Limited


2500, 855 - 2 Street S.W.
Calgary, Alberta
T2P 4J8

403-517-6700
assetrecovery@cnrl.com
2.4.10:4.2.11.3