Get it on Google Play

SEPARATOR

Download Images

SEPARATOR

Red Deer

Listing ID 29692
Company Canadian Natural Resources Limited
Status For Sale
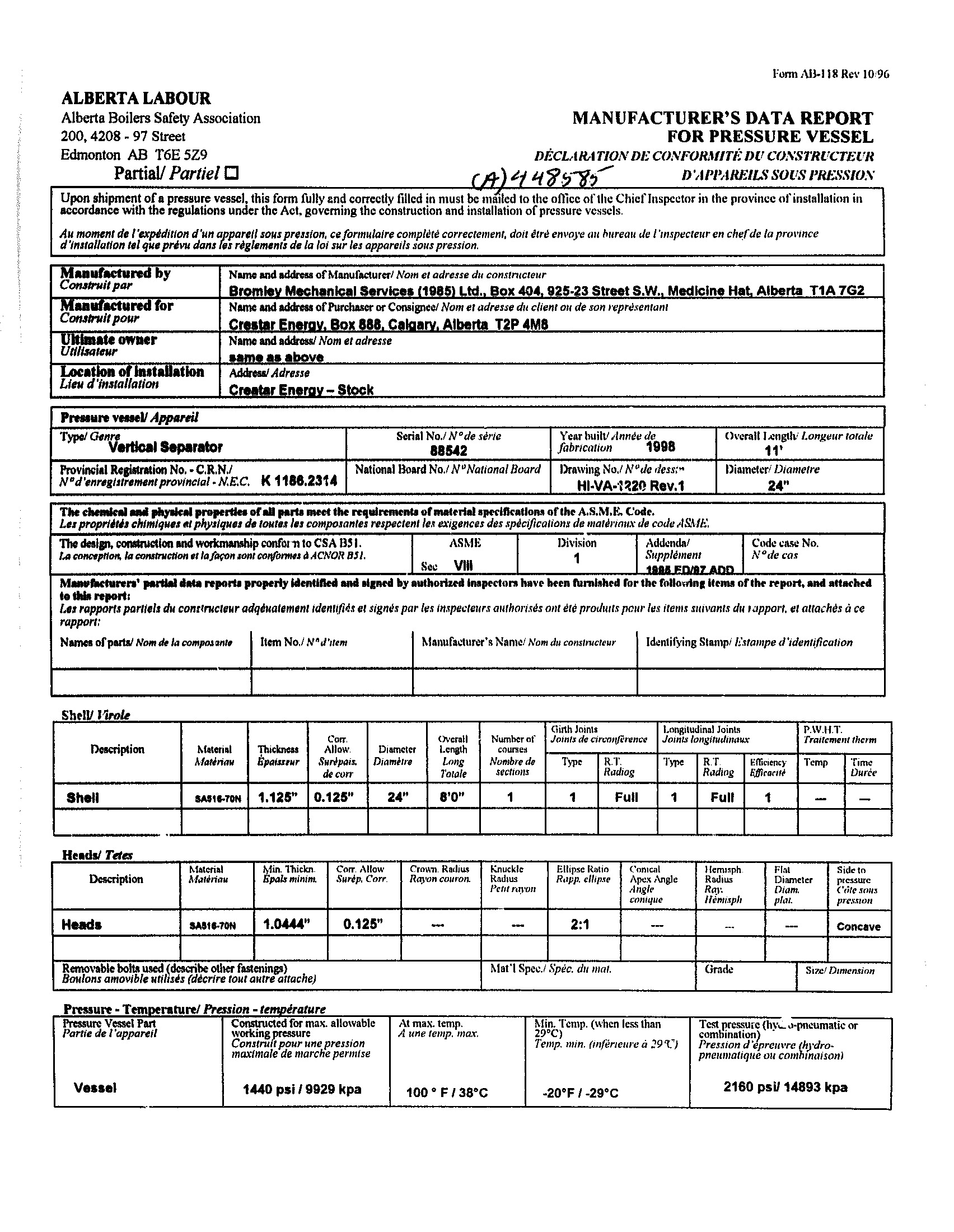
Year Built 1998
Condition B

Separator Information

Diameter 24"
Separator Length 8
Separator Type N/A
MAWP (PSI) 1440
MAWP (kPa) 9928
Orientation Vertical
Skidded Yes
Sour Service No
Integrated Tank No
Manufacturer BROMLEY

Pricing Information

Price

Serial Numbers

A# 448585
CRN# K-1186.231
Serial# 88542

Location

Operating Area Red Deer

Description

Contact Information

Cdnnaturalogo

Asset Recovery
Canadian Natural Resources Limited


2500, 855 - 2 Street S.W.
Calgary, Alberta
T2P 4J8

403-517-6700
assetrecovery@cnrl.com
2.4.10:4.2.11.3