Get it on Google Play

LINE HEATER

Download Images

LINE HEATER

Edson

Listing ID 140
Company Canadian Natural Resources Limited
Status For Sale
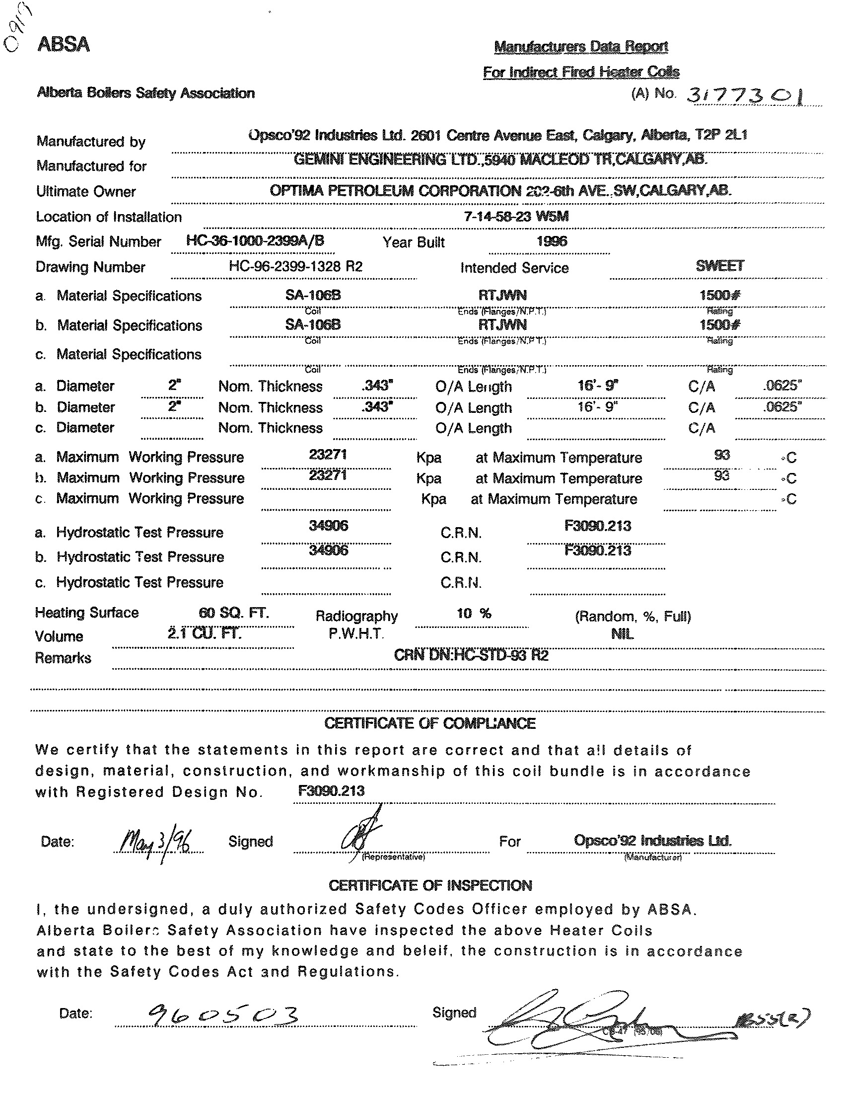
Year Built 1996
Condition C

Line Heater Information

Duty (BTU/hr) 1000000
Sour Service No
Choke No
MAWP In (PSI) 3375
MAWP In (kPa) 23270
PSI Out 0
kPa Out 0
ANSI Rating (In) 900#
ANSI Rating (Out) N/A
Manufacturer OPSCO

Pricing Information

Price

Serial Numbers

A# 3177301
CRN# F3090.213
Serial# HC-36-1000-2399A/B

Location

Operating Area Edson

Description

MAWP: 23271 kpa

Manufacturer: Opsco

Contact Information

Cdnnaturalogo

Asset Recovery
Canadian Natural Resources Limited


2500, 855 - 2 Street S.W.
Calgary, Alberta
T2P 4J8

403-517-6700
assetrecovery@cnrl.com
2.4.10:4.2.11.3