Get it on Google Play

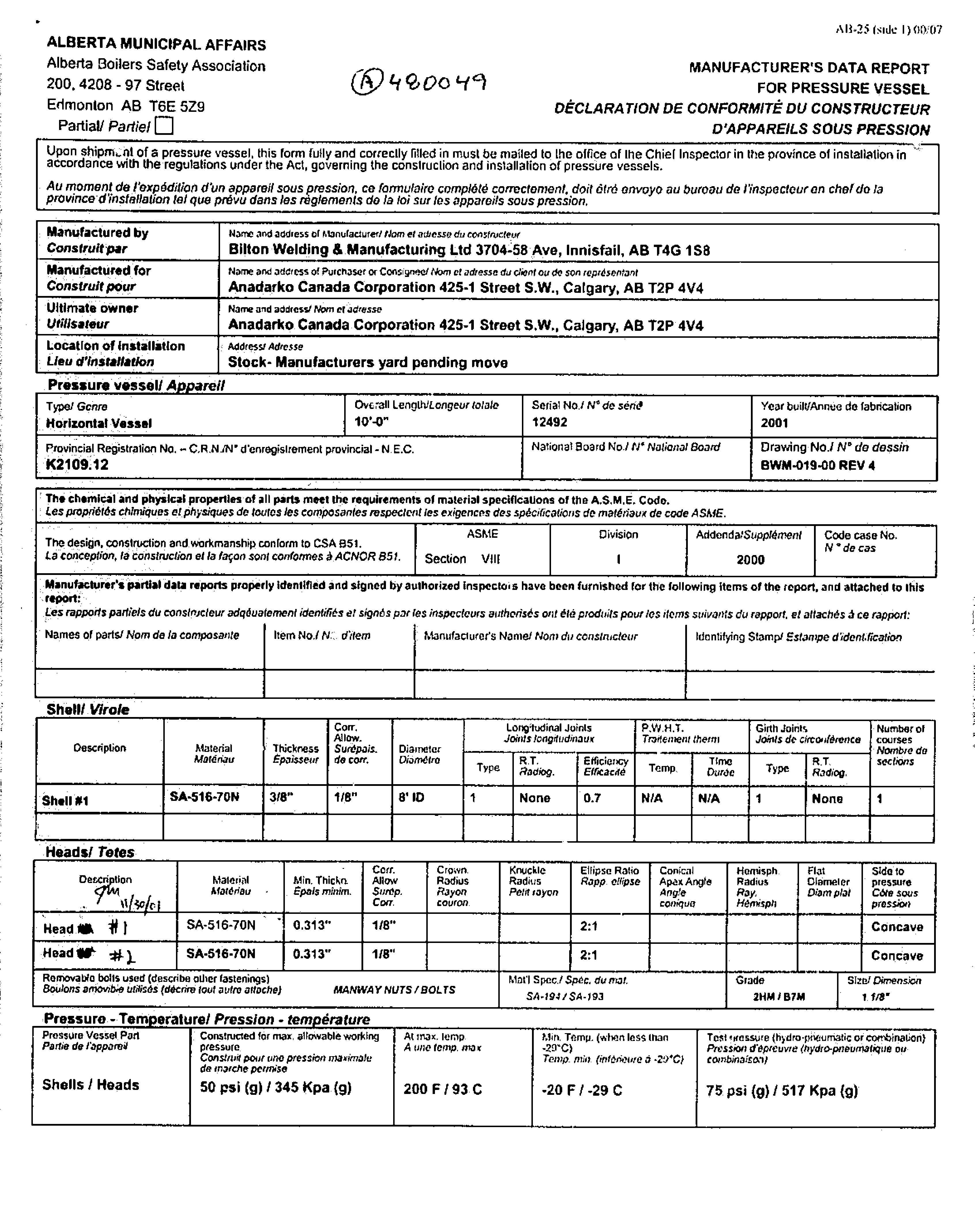
FLARE KNOCKOUT- HP

Download Images

FLARE KNOCKOUT- HP

Fort St. John North

Listing ID 38686
Company Canadian Natural Resources Limited
Status On Hold
Year Built 2001
Condition B

Flare Knockout Information

Diameter 96"
Length 10'
Capacity 100 BBL
MAWP (kPa) 345
MAWP (PSI) 50
Sour Service No

Pricing Information

Price

Serial Numbers

A# 480049
CRN# k-2109.12
Serial# 12492

Location

Operating Area Fort St. John North

Description

Contact Information

Cdnnaturalogo

Asset Recovery
Canadian Natural Resources Limited


2500, 855 - 2 Street S.W.
Calgary, Alberta
T2P 4J8

403-517-6700
assetrecovery@cnrl.com
2.4.10:4.2.11.3