Get it on Google Play

DEHYDRATOR PACKAGE

Download Images

DEHYDRATOR PACKAGE

Fort St. John Central

Listing ID 2168
Company Canadian Natural Resources Limited
Status Available
Year Built 2001
Condition C

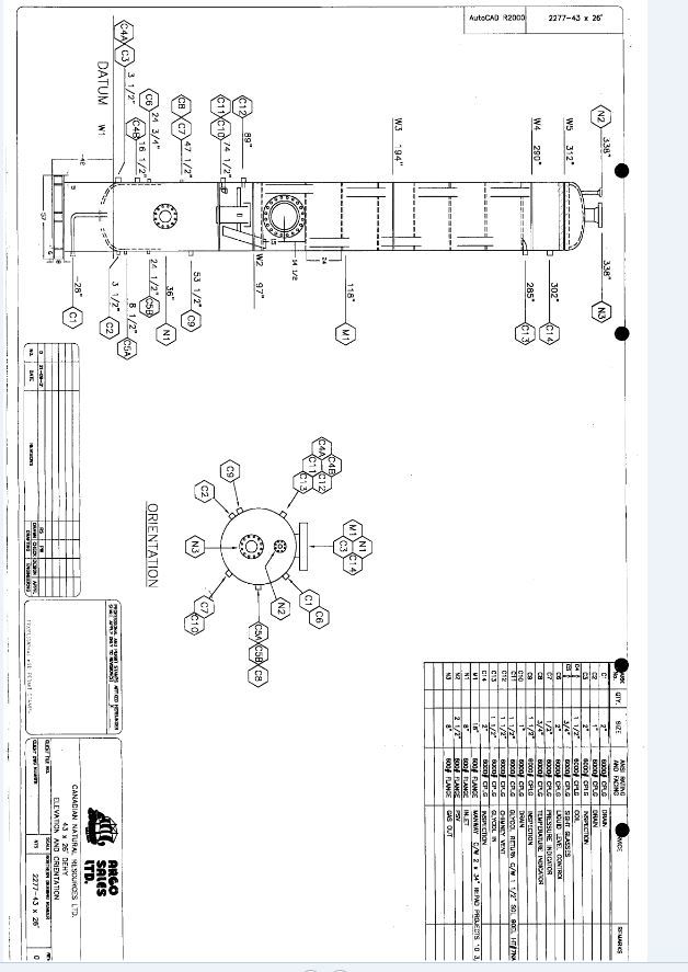
Dehydrator Information

Diameter 42"
Reboiler Duty (BTU/hr)
Capacity (MMscfd)
MAWP (kPa) 9791
MAWP (PSI) 1420
Number of Trays
Sour Service Yes
Flash Tank Yes
Pump Style
Manufacturer CESSCO

Pricing Information

Price

Serial Numbers

A# 133291
CRN# E8494.1
Serial# PE772

Location

Operating Area Fort St. John Central

Description

Tower is from 1977, package is from 2001. A 60" tower was originally installed then later replaced with a smaller 48" tower.

Registered in BC and Alberta

Contact Information

Cdnnaturalogo

Asset Recovery
Canadian Natural Resources Limited


2500, 855 - 2 Street S.W.
Calgary, Alberta
T2P 4J8

403-517-6700
assetrecovery@cnrl.com
2.4.10:4.2.11.3